BUERO,- PRAXIS- ODER KANZLEIRAEUME - ZENTRAL in bester Innenstadtlage zu vermieten
| Adresse: | 77736 Zell a.H. |
| Gesamtfläche: | 255 m² |
| Lagerfläche: | 30 m² |
| Verkaufsfläche: | 255 m² |
| Baujahr: | 1991 |
| Frei ab: | 01.02.2026 |
| Miete: | € 2200,00 |
| Provision: | € keine |
Beschreibung
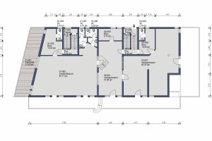
Der Gewerbebereich mit ca. 255 m² Grundfläche ist individuell gestalt- und nutzbar.
Bequem erreichen die Besucher barrierefrei die Geschäftsräume.
Großzügige Fensterflächen ermöglichen eine vielseitige Nutzung der Gewerbefläche sowohl als Büro, Praxisbereich oder Ladengeschäft.
Im Untergeschoss befinden sich 2 große abschließbare Keller welche zur Lagerhaltung bestens geeignet sind.
Das gesamte Erdgeschoss bestehend aus 3 Gewerbeeinheiten kann auch aufgeteilt vermietet werden.
Folgende Teilflächen könnten angemietet werden
* Einheit mit ca. 100m²
* Einheit mit ca. 95m²
* Einheit mit ca. 55m²
Direkt vor dem Haus befinden sich 8 PKW-Abstellplätze
Zum 1. Februar 2026 werden die Räume bezugsfrei.
Lage
Das Wohn- und Geschäftshaus liegt zentrumsnah, in der Nähe des Storchenturms und des Kanzleiplatzes und ist verkehrstechnisch gut erreichbar.
Der Bahnhof mit guter Anbindung nach Offenburg ist nur ca. 100 m entfernt.
Zell am Harmersbach zählt zu den beliebtesten Städten des mittleren Kinzigtales.
Die Einwohner der ehemals Freien Reichsstadt Zell am Harmersbach haben es viele Jahrhunderte lang verstanden, das Erbe der Vorfahren zu bewahren und bis heute mit der Gegenwart in Einklang zu bringen.
Malerische Gässle und Winkel, Reste der ehemaligen Stadtbefestigung, Hirschturm und Storchenturm – nicht zu vergessen das harmonische Miteinander von Fachwerkhäusern und Jugendstilbauten der Zeller Hauptstrasse – bieten ein Ambiente von Nostalgie und kleinstädtischer Betriebsamkeit.
Hier lässt´s sichs leben, denn pulsierendes Leben und stille Ecken liegen oft nur wenige Schritte auseinander!
Sehr gute Einkaufsmöglichkeiten sind direkt im Ort Zell a. H. vorhanden. (8010 Einwohner ) .
Die nächst größere Stadt Offenburg mit ca. 50.000 Einwohnern und hervorragenden Einkaufsmöglichkeiten ist ca. weitere 25 km entfernt - Freiburg - 50 km.
In dieser schönen Wohngegend genießt man eine gute Infrastruktur. Einkauf, Schulen, Ärzte, Apotheken sowie Sport und Freizeiteinrichtungen finden Sie alles in unmittelbarer Nähe. Die nächste Auffahrt zur A 5 sowie den nächsten ICE – Bahnhof befinden sich im ca. 25 km entfernten Offenburg. Bedingt durch die reizvolle umliegende Gegend genießt man einen guten Erholungs- und Freizeitwert.
Wir habe ihr Interesse geweckt? Gerne lassen wir ihnen weitere Informationen zukommen.
